Категории

Кран шаровой полнопроходной 392 с фланцем для установки привода

Кран шаровой полнопроходной 392 с фланцем для установки привода

Характеристики

Макс. температура (Т) °С.: до +80 °С

Мин. температура (Т) °С.: до -40 °С (исп. У), до -60 °С (исп. ХЛ)

Класс герметичности: Класс «А» ГОСТ 9544-2015

Срок службы: Не менее 40 лет.

Гарантийный срок: 3 года или не менее 10 000 циклов.

Тип присоединения: 

 приварной/приварной 

Рабочая среда:

Природный газ, сжиженный  углеводородный газ и другие газообразные среды, неагрессивные для материалов деталей крана.

Модификации

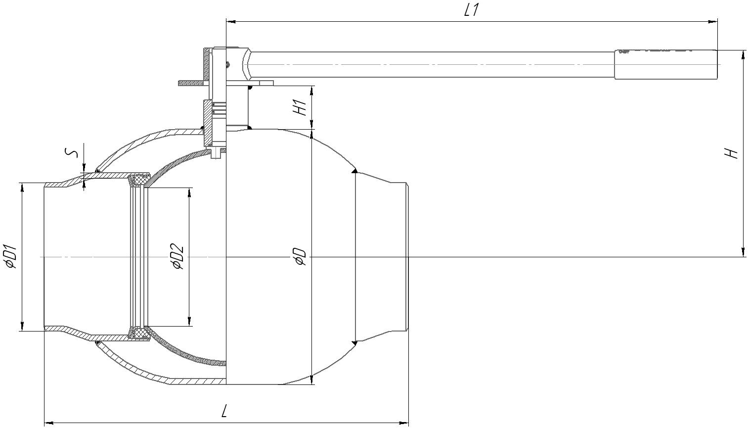
Артикул DN PN L L1 H H1 D D1 D2 S Вес
39220100 100 25 330 525 187 50 180 108 100 5 14,30
39220125 125 25 360 525 203 47 219 133 125 5 18,75
39220150 150 25 390 525 228 45 273 159 148 6 25,00
39220200 200 25 510 1030 273 51 351 219 200 8 58,25
39220250 250 16/25 730 - 414 101 426 273 240 10 123,00
39220300 300 16/25 730 - 464 101 530 325 300 10 235,00
39220400 400 16/25 970 - 560 103 630 426 390 10 454,00