Категории

Кран шаровой полнопроходной 294 с фланцем для установки привода

Характеристики

Макс. температура (Т) °С.: до +200 °С

Мин. температура (Т) °С.: до -40 °С (исп. У), до -60 °С (исп. ХЛ)

Класс герметичности: Класс «А» ГОСТ 9544-2015

Срок службы: Не менее 25 лет*

Гарантийный срок: 3 года или не менее 10 000 циклов

Материалы корпуса: Сталь 20/09Г2С/12Х18Н10Т

Тип присоединения:

фланцевое (PN 25)/ фланцевое (PN 25)

Рабочая среда:

 теплосетевая вода, нефтепродукты, ГСМ и другие рабочие среды, неагрессивные для материалов деталей крана.

Модификации

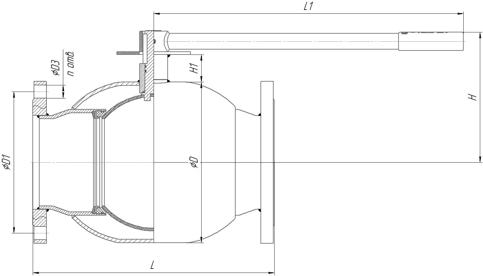
Артикул DN PN L L1 H H1 D D2 D3 D4 n отв. Вес,кг
29420125iso 125 25 380 526 200,8 53,3 219 125 220 26 8 33,67
29420150iso 150 25 410 526 221 46,5 273 148 250 26 8 49,31
29420200iso 200 25 530 1019,5 273 51 351 200 310 26 12 92,54
29420250iso 250 25 750 - 414 101 426 240 370 30 12 147,0
29420300iso 300 25 750 - 464 100 530 300 430 30 16 272,0
29420400iso 400 25 990 - 560 103 630 390 550 33 16 617,0
29420500iso 500 25 1017 - 664 104 820 500 660 39 20 962,0