Категории
Кран шаровой полнопроходной 293 с фланцем для установки привода
Характеристики
Макс. температура (Т) °С.: до +200 °С
Мин. температура (Т) °С.: до -40 °С (исп. У), до -60 °С (исп. ХЛ)
Класс герметичности: Класс «А» ГОСТ 9544-2015
Срок службы: Не менее 25 лет
Гарантийный срок: 3 года или не менее 10 000 циклов
Материалы корпуса: Сталь 20/09Г2С/12Х18Н10Т
Тип присоединения:
фланцевый/фланцевый
Рабочая среда:
теплосетевая вода, нефтепродукты, ГСМ и другие рабочие среды, неагрессивные для материалов деталей крана
Модификации
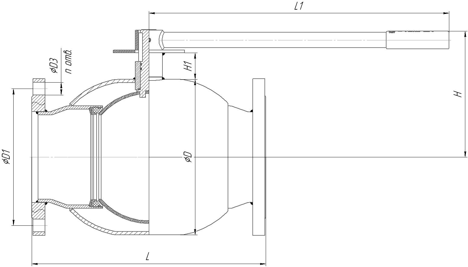
Артикул | DN | PN | L | L1 | H | H1 | D | D2 | D3 | D4 | n отв. | Вес.кг | |
---|---|---|---|---|---|---|---|---|---|---|---|---|---|
29320125iso | 125 | 16 | 380 | 526 | 200,8 | 53,3 | 219 | 125 | 210 | 18 | 8 | 28,67 | |
29320150iso | 150 | 16 | 410 | 526 | 221 | 46,5 | 273 | 148 | 240 | 22 | 8 | 36,31 | |
29320200iso | 200 | 16 | 530 | 1019,5 | 273 | 51 | 351 | 200 | 295 | 22 | 12 | 76,75 | |
29320250iso | 250 | 16 | 750 | - | 414 | 101 | 426 | 240 | 355 | 26 | 12 | 145,00 | |
29320300iso | 300 | 16 | 750 | - | 464 | 100 | 530 | 300 | 410 | 26 | 12 | 270,00 | |
29320400iso | 400 | 16 | 990 | - | 560 | 103 | 630 | 390 | 525 | 30 | 16 | 615,00 | |
29320500iso | 500 | 16 | 1017 | - | 664 | 104 | 820 | 500 | 650 | 33 | 20 | 940,50 |